T2 Meublé Tilleroyes Besançon
Tilleroyes
T2 Meublé Tilleroyes Besançon 778.92€ C.C
- 2p
- 2ch
Le Quartier O2
Le Quartier 02 est un nouveau concept d’habitat tourné vers la qualité de vie, situé dans le quartier des Tilleroyes à Besançon.
SMCI a imaginé un habitat adapté aux besoins et aux aspirations d’aujourd’hui. Un programme original dans un environnement naturel préservé tout en étant en ville. Une architecture en escalier garantissant l'intimité des appartements. De grands espaces extérieurs, une qualité de construction durable.
T1, T1 bis, T2, T3 et T4 disponibles à la location.
A la fois proche de toutes les commodités citadines et situé dans un cadre naturel verdoyant :
-école à 150 mètres,
-accès rapide aux transports en commun, bus à 50 mètres, tramway à 10 minutes,
-à proximité des sorties de ville 4 voies, rocade, autoroute.
Idéalement situé près des bassins d’emploi et d’étudiants. L’hôpital Minjoz, les facultés de médecine et de pharmacie, l’école d’infirmière, les facultés de la Bouloie, ou encore les zones économiques des Tilleroyes et ou de Châteaufarine sont à seulement quelques minutes.
Vidéo
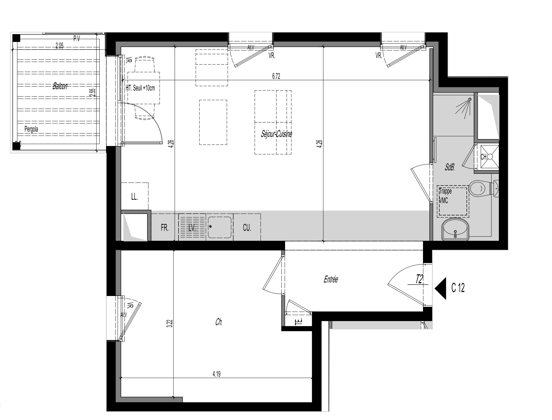
Dans le quartier prisé des Tilleroyes, le Quartier O2 est une nouvelle philosophie d'habitat. Cet appartement neuf, meublé, de type T2, d'une superficie de 49.20m² se compose :
- une entrée
- une cuisine équipée
- un séjour
- une chambre
- une salle de douche - wc.
Dispose également d'une terrasse et une place de parking en sous-sol sont compris avec l'appartement.
Loyer : 708.92€ HC/mois + Provisions de Charges : 70 €/mois soit 778.92€ / mois
Montant du dépôt de garantie est de 1 417,84€.
Une régularisation des charges annuelle est réalisée.
Frais agence : 442.80€
Chauffage : individuel gaz
Eau chaude : individuel gaz
Disponible le 31/01/2026
- Réf. TIL4NIC
- Loyer 708,92 € / mois
- Charges 70,00 € / mois
- Honoraires 442,80 €
- Surface 49.2 m2
- Chambres 2
- Type de cuisine Equipée
- Eau chaude Individuel
- Ascenseur
- Parking
- Garage
- Cave
- Interphone
- Terrasse
- Climatisation
Le montant des dépenses annuellles d'énergie pour un usage standard est estimée entre 676€ et 914€ par an.
(Prix moyen des énergies indexées au 01/01/2023)
- 2p
- 1ch
- 3p
- 2ch
- 1p
- 1ch
- 4p
- 2ch
- 2p
- 1ch
- 3p
- 2ch
- 2p
- 1ch
- 3p
- 2ch
- 2p
- 1ch